Slideshow

Slide 1 selected
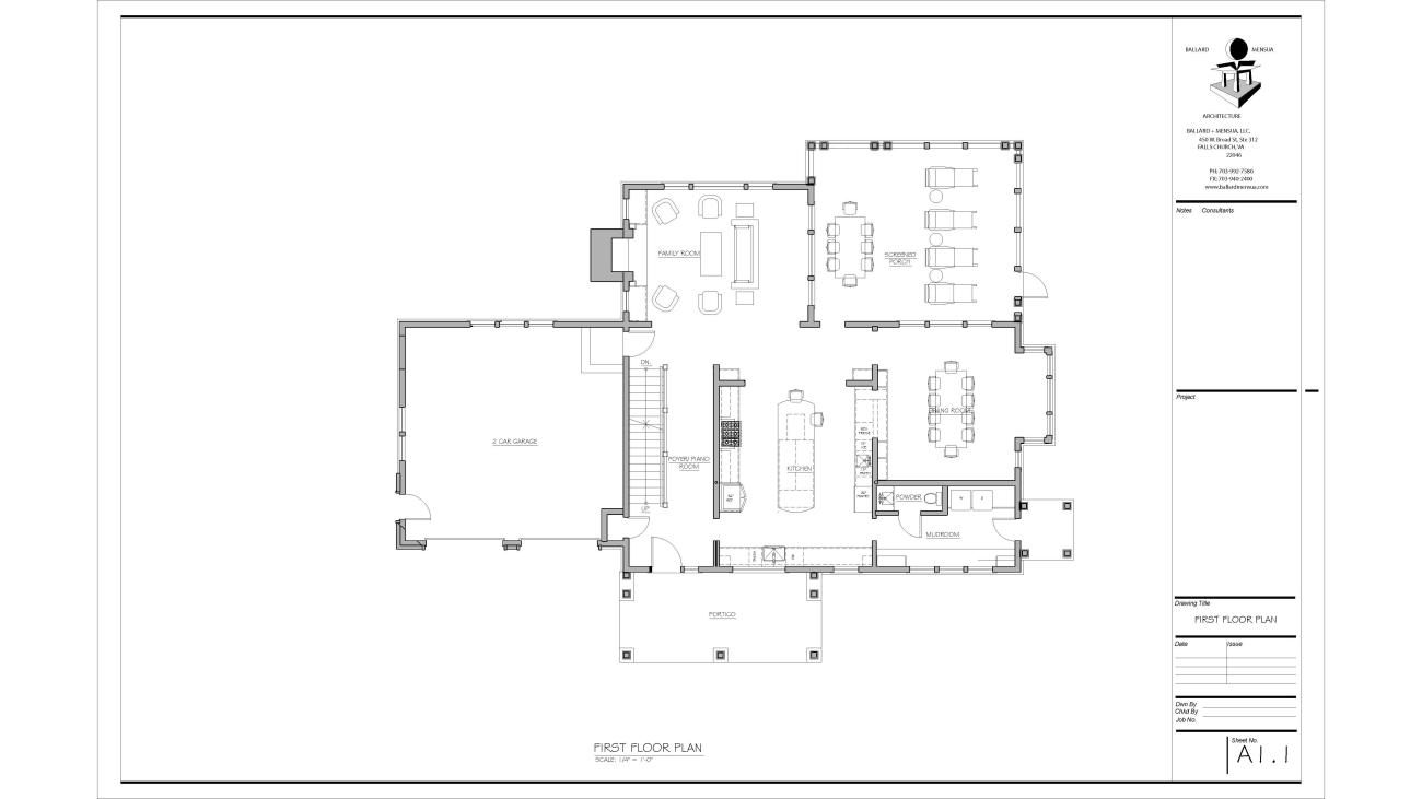
Perfect Peninsula