Slideshow

Slide 1 selected
Gatehouse Downhill
The Sanctuary at Snowshoe
Snowshoe, WV

Seth Ballard, family, and friends have made Snowshoe Mountain a second home over the winter, usually skiing there at least 15 days a year. Through looking for a place to stay for a friend, Seth was introduced to the developer of The Sanctuary at Snowshoe, a 120-lot development next to Soaring Eagle Lodge. The original development stopped at the 2008 crash and client James Scharf, First Tracts Real Estate and a team of top builders on the mountain are working to offer a luxury development of top-notch architect-designed homes. The site is mountainside and is very sloped, so the original designs are all tall and shallow in depth and offer a classic mountain look.

James and the development team asked Ballard Mensua to come up with some new and fresh mountain modern-style homes for sale as part of the development. The Mountain Cottage offers an entry-level home, with three bedrooms and fewer square feet. Then, the Gatehouse offers 5 or 6-bedroom options. Both of these offer top-level living with two stories of soaring views, a timber frame ceiling, and an optional elevator.

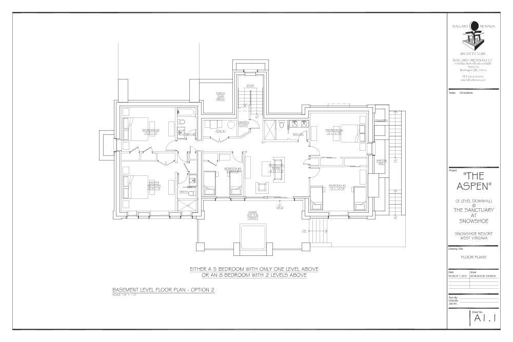
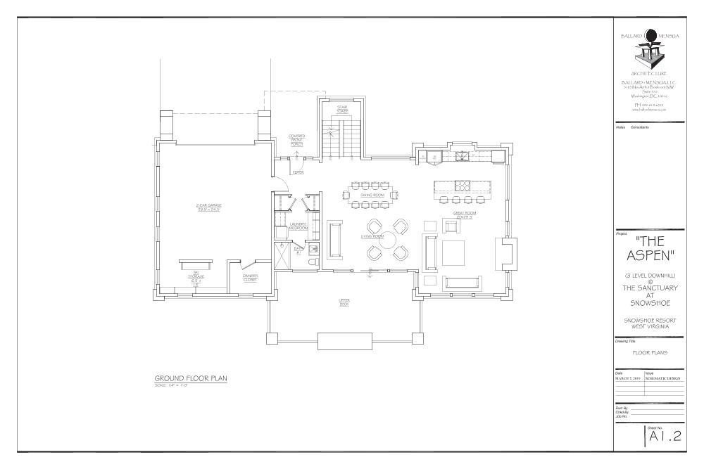
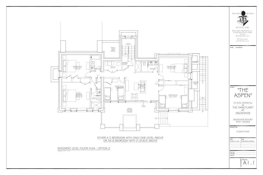
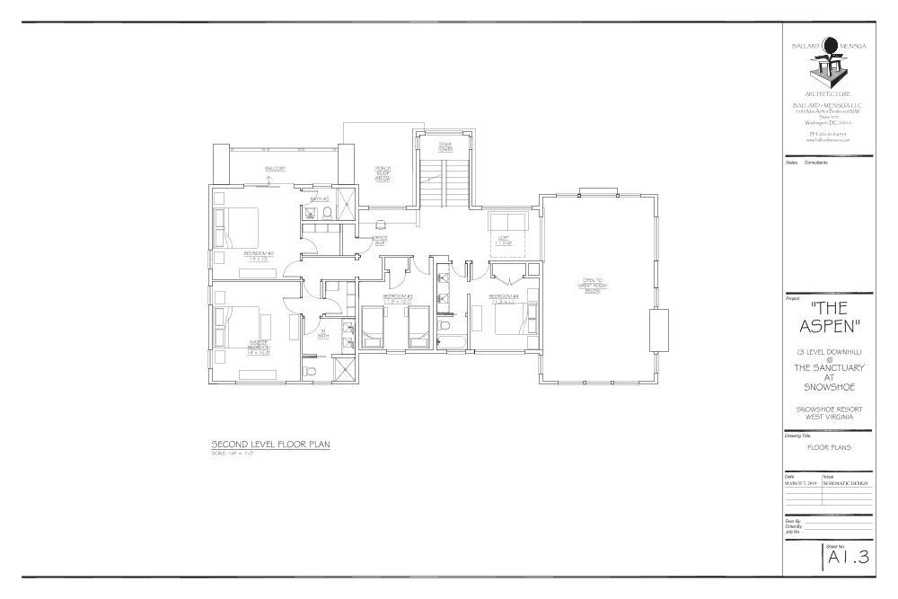
For those open to purchasing two lots, we have designed a new option, named The Aspen, which is available in 2-level or 3-level and has options of up to 8 bedrooms of luxury living on the mountain. The homes will have heated roofs, steel structures, and Loewen windows, and will be solidly built and insulated to hold up to the harsh mountain climate. The homes are a short ski or walk to the Soaring Eagle lift. We are proud and happy to be involved in this exciting development and look forward to seeing these homes built over the next few years. We are currently working with First Tracts Real Estate and DP Ventures on a few other developments on the mountain as well and will have these on the website soon.

Hover over the photo for more information on the image. James and the development team asked Ballard Mensua to come up with some new and fresh mountain modern style homes for sale as part of the development. The Mountain Cottage offers the entry-level home, with three bedrooms and less square feet. Then, the Gatehouse offers 5 or 6 bedroom options. Both of these offer top level living with two stories of soaring views, timber frame ceiling, and an optional elevator.

For those open to purchasing two lots, we have designed a new option, named The Aspen, which is available in 2-level or 3-level and has options of up to 8 bedrooms of luxury living on the mountain. The homes will have heated roofs, steel structures, Loewen windows, and will be solidly built and insulated to hold up to the harsh mountain climate. The homes are a short ski or walk to the Soaring Eagle lift. We are proud and happy to be involved in this exciting development and look forward to seeing these homes built over the next few years. We are currently working with First Tracts Real Estate and DP Ventures on a few other developments on the mountain as well and will have these on the website soon.

Hover over the photo for more information on the image. 

  • Gatehouse Downhill
  • Gatehouse Front
  • Gatehouse Rear
  • Mountain Cottage Front
  • Mountain Cottage Rear
  • Mountain Cottage 1 car option
  • mountain Cottage 2 Car Option
  • Mountain Cottage
  • Mountain Cottage
  • Aspen 3 level Front
  • Aspen 3 level Rear with Gatehouse behind
  • Aspen 2 Level Downhill
  • Aspen 2 level
  • Aspen 2 level rear with Gatehouse Behind
  • Aspen Basement Plan Option 1
  • Basement Floor Plan Option 2
  • First Level Floor Plan
  • Second Level Floor Plan