Skip to main content
Ballard + Mensua Architecture
Main navigation
About
Projects
Services
Process
Contact
Breadcrumb
Projects
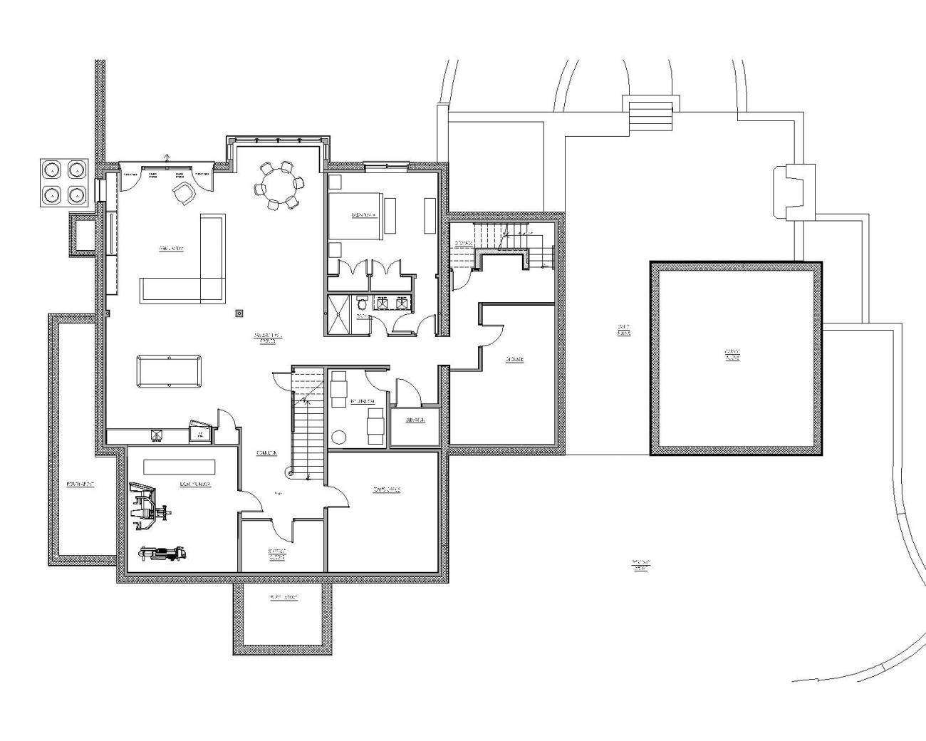
Xmas House
Slideshow
Slide 1 selected
Before
Previous Slide
Play and Stop Slideshow
Next Slide
Toggle Gallery
Xmas House
Arlington, VA